WOHNEN MIT WEITBLICK
Reihenhäuser
Effiziente Lösung für das eigene Heim
Sie suchen ein Haus mit eigenem Garten, sind Freund effizienter Lösungen auch bei der Gestaltung Ihres Wohnens und schätzen bei aller Individualität die Vorteile eines intakten sozialen Netzwerks? All das und noch viel mehr finden Sie in dem Bauprojekt „Wohnen mit Weitblick“.
Die dort entstehenden Reihenhäuser sind als Drillinge auf real geteilten eigenen bereits eingewachsenen Grundstücken angelegt.
Die modern im Bauhausstil geplanten Häuser haben 2,5 Geschosse mit einer großzügigen und für die Nachbarn nicht einsehbaren Dachterrasse sowie eigene Gärten und Parkplätze.
Die Hanglage am östlichen Rand des Parkgrundstücks verschafft Ihnen weite Blicke in die idyllische Umgebung.
Für Sie geplant
Die Reihenhäuser verfügen über ein ausgebautes Erd- Ober und Staffelgeschoss mit einem Flachdach. Von einem renommierten Architekturbüro werden sie als Effizienzhaus 55 EE mit Photovoltaik und Wärmepumpe geplant. Bevor die Bauanträge gestellt werden, möchten wir mit Ihnen ins Gespräch kommen zu der Ausstattung, die Sie suchen. Ausschreibung und Bemusterung auf Grundlage marktgerechter Preise wurden daher noch nicht abgeschlossen.
Einige Highlights aus der Baubeschreibung – gerne planen wir mit Ihnen die Details.
+ Fußbodenheizungen in allen Wohnräumen und Bädern
+ Hochwertige Sanitärobjekte mit großer Standardauswahl
+ Bodengleiche Duschen
+ Boden- und Wandfliesen in Bad und WV
+ Kunststoff / Alufenster mit 3- fach-Verglasung
+ gartenseitige Schiebetüren
+ Alu-Jalousien oder Aluminiumrolläden
+ Multimedia-Netzwerkinstallationen
+ Rauchmelder für Flure, Schlafzimmer und Arbeitszimmer
+ Holztreppen
Ihr Flurstück
Da nur wenige Entscheidungen im Leben so individuell sind wie die für das eigene Zuhause bietet „Wohnen mit Weitblick“ den Käufern der geplanten Häuser die Wahl. Bevor die Bauanträge gestellt werden, möchten wir Sie zu Wort kommen lassen zu der Fläche, die Sie suchen. Damit auch für Sie das Passende dabei ist.
Auf insgesamt über 2100 qm sind neun real geteilte Flurstücke entstanden, auf denen die Häuser in Drillingsbauweise stehen werden. Wo soll Ihr Haus stehen und wie groß soll Ihr Grundstück sein?
Sie können wählen – wir planen mit Ihnen die Realisierung!
Die Grundstücksgrößen /Flurstücke der Reiheneckhäuser
Haus 1: 339 m²
Haus 3: 200 m²
Haus 4: 208 m²
Haus 6: 223 m²
Haus 7: 231m²
Haus 9: 462m²
Die Grundstücke der Mittelhäuser
Haus 2: 135 m²
Haus 5: 151 m²
Haus 8: 167 m²
Ihre vier Wände
Da nur wenige Entscheidungen im Leben so individuell sind wie die für das eigene Zuhause bietet „Wohnen mit Weitblick“ den Käufern der geplanten Häuser die Wahl. Bevor die Bauanträge gestellt werden, möchten wir Sie zu Wort kommen lassen zu der Fläche, die Sie suchen. Damit auch für Sie das Passende dabei ist.
Auch für Ihre vier Wände haben unsere Architekten für Sie beim Grundriss der Häuser Alternativen entwickelt, die Ihrem Wohnraumbedarf entsprechen.
Sie können wählen – wir planen mit Ihnen die Realisierung!
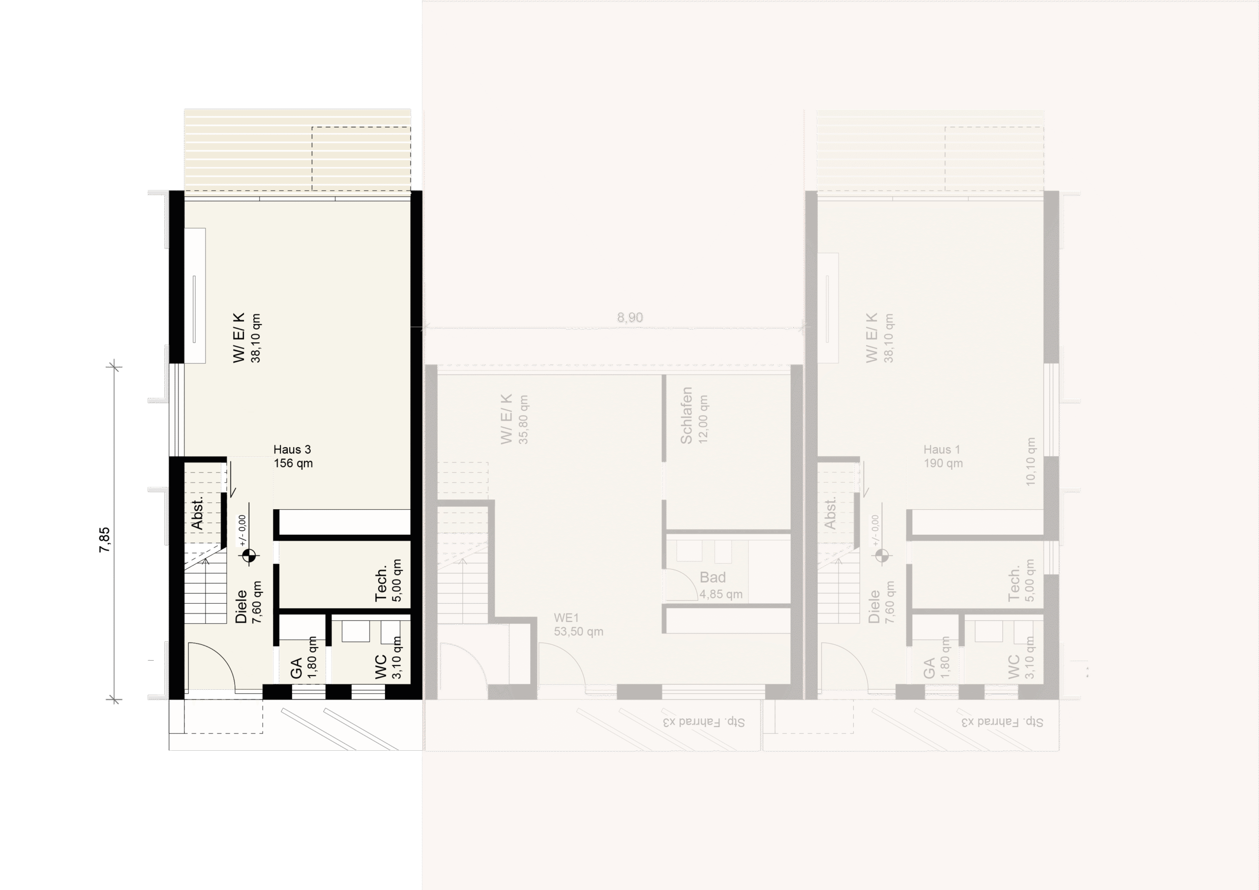
Eckhaus 1, 6, 7, 9
• Wohnfläche ca. 190 m²
• 2,5 Geschosse mit großzügiger nicht einsehbarer Terrasse
• 3 Schlafzimmer
• 2 Bäder, Gäste WC
• Arbeitszimmer
Eckhaus 1, 3, 4, 6, 7, 9
• Wohnfläche ca. 156 m²
• 2,5 Geschosse mit großzügiger nicht einsehbarer Terrasse
• 3 Schlafzimmer
• 1 Bad, Gäste WC
• Arbeitszimmer
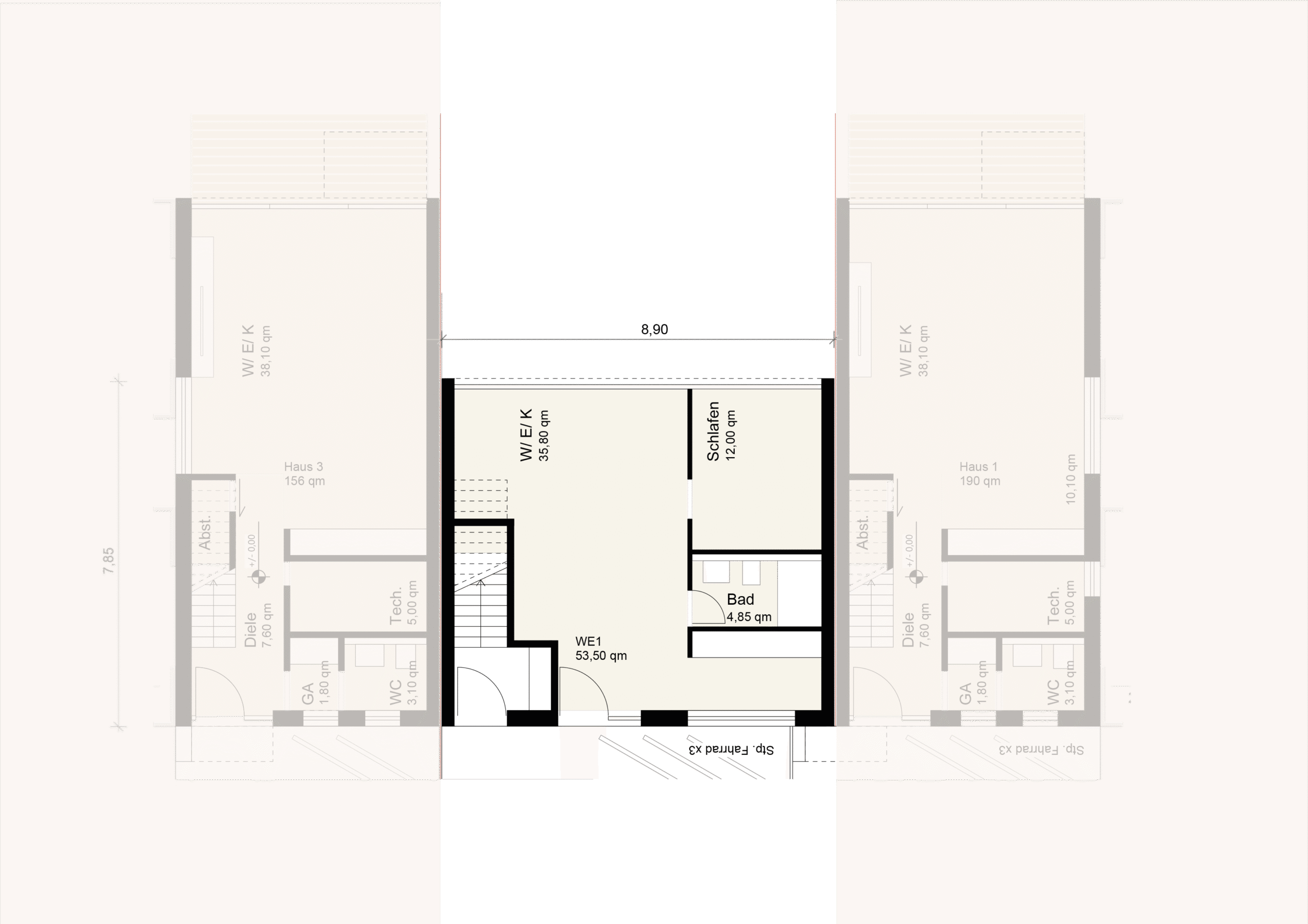
Mittelhaus 2, 5, 8
A. Wohnung 1 mit Garten in EG
• Wohnfläche ca. 60 m²
• Großer Wohn-/ Essraum mit integrierter Küche
• 1 Schlafzimmer
• Bad
Mittelhaus 2, 5, 8
B. Wohnung 2 (Maisonette mit Terrasse)
• Wohnfläche ca. 98 m²
• Großer Wohn-/ Essraum mit integrierter Küche
• 2 Schlafzimmer
• Bad, Gäste WC
• Arbeitszimmer
• Großzügige nicht einsehbare Terrasse








